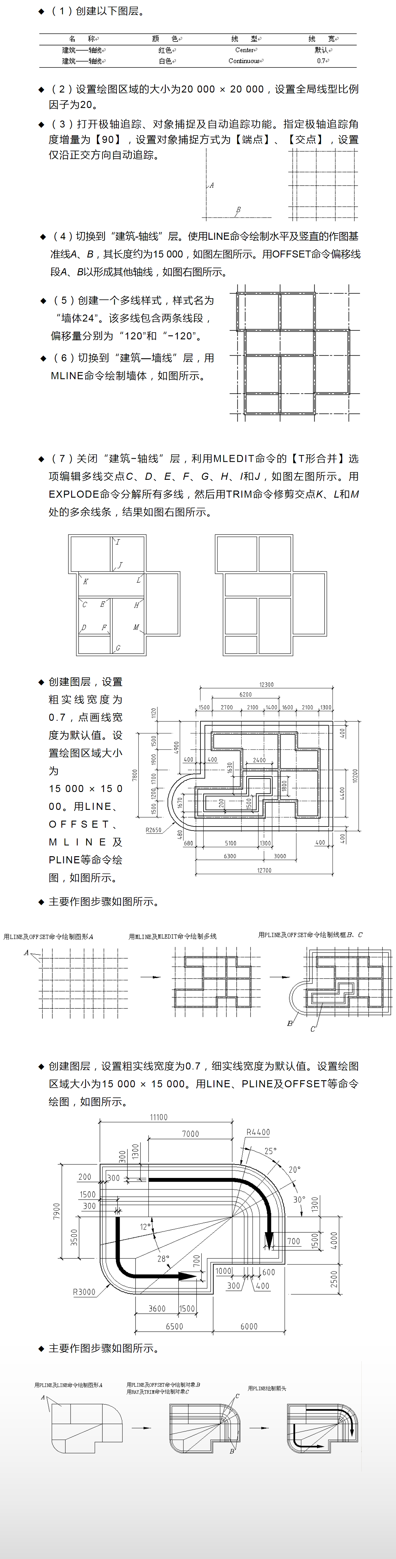
P30-绘制多线段